- トップページ
- 不動産投資・収益物件検索
- 東京都立川市 「砂川七番」駅収益ビルの詳細
収益ビル - 東京都立川市柏町2丁目 「砂川七番」駅
収益ビル
東京都立川市柏町2丁目
多摩都市モノレール線「砂川七番」駅 徒歩12分
多摩都市モノレール 泉体育館駅 徒歩12分
価格:6,300万円
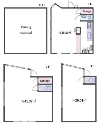
- 規模:地上3階地下1階
- 築年月:1996年08月 / 構造:RC
- 建物面積:145.08m² / 土地面積:66.34m²

| 新築中古区分 | 中古 | 物件番号 | F-16738 |
|---|---|---|---|
| 建ぺい率 | 60% | 容積率 | 200% |
| 土地面積 | 66.34m² | 取引態様 | 媒介 |
| 坪単価 | 建物面積 | 145.08m² | |
| 延べ面積 | バルコニー方向 | ||
| 土地権利 | 所有権 | 地目 | |
| 都市計画 | 用途地域 | ||
| 築年月 | 1996年08月 | 工事完了年月 | |
| 現況 | 空家 | 引渡 | 即時 |
| 接道 | |||
| 国土法届出 | 建築条件 | ||
| 私道負担 | 私道面積 | ||
| 地勢 | 駐車場 | ||
| 備考 | |||
-

東京都町田市森野1-7-23
大樹生命町田ビル6階 -



-










































●おすすめポイント!
◎立川市
◎床大理石使用の室内をリフォーム済み
◎屋上防水・外壁塗装・車庫塗装済み
◎エアコン3台取り換え済み
お気軽にお問い合わせ下さい!!