- トップページ
- 不動産投資・収益物件検索
- 東京都足立区 「西新井」駅投資用マンション(一棟)の詳細
投資用マンション(一棟) - 東京都足立区栗原1丁目 「西新井」駅
一棟マンション
東京都足立区栗原1丁目
東武伊勢崎線「西新井」駅 徒歩6分
価格:24,980万円 / 想定利回り:約4.62%
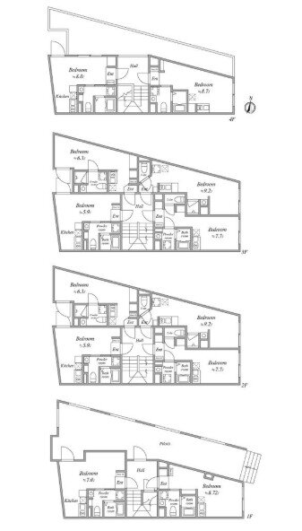
- 規模:地上3階 / 総戸数:12戸
- 築年月:2025年02月 / 構造:RC
- 建物面積:255.74m² / 土地面積:115.57m²

| 新築中古区分 | 中古 | 物件番号 | F-16539 |
|---|---|---|---|
| 建ぺい率 | 60% | 容積率 | 200% |
| 土地面積 | 115.57m² | 取引態様 | 媒介 |
| 坪単価 | 建物面積 | 255.74m² | |
| 延べ面積 | バルコニー方向 | ||
| 土地権利 | 所有権 | 地目 | 宅地 |
| 都市計画 | 市街化区域 | 用途地域 | 第1種住居地域 |
| 築年月 | 2025年02月 | 工事完了年月 | |
| 現況 | 賃貸中 | 引渡 | 相談 |
| 接道 | 南側 幅員5m 公道 | ||
| 国土法届出 | 建築条件 | ||
| 私道負担 | 私道面積 | ||
| 地勢 | 駐車場 | ||
| 備考 | ◎デザイナーズマンション ◎令和7年築 ◎東武伊勢崎線・大師線「西新井」駅徒歩6分! ◎満室稼働中 ◎周辺は飲食店・スーパー充実 災害に強いオール電化、トイレ・洗面所と浴室独立、IHクッキングヒーター 室内洗濯機置場、浴室乾燥機付、インターネット無料、モニター付オートロック 防犯カメラ、宅配BOX、その他 ギャラクシティ・西新井文化ホール(200m 徒歩3分) イオン西新井店(400m 徒歩5分) アリオ西新井(1100m 徒歩14分) 西新井大師(1100m 徒歩14分) サカエ薬局栗原店(140m 徒歩2分) 近隣商業地域 建ぺい率80%・容積率200%もかかっています お気軽にお問い合わせください!! |
||
-

東京都町田市森野1-7-23
大樹生命町田ビル6階 -



-

この物件を元に他の投資用マンション(一棟)を再検索する
東京都足立区栗原1丁目 - 価格:24,980万円・想定利回り:約4.62%









































