- トップページ
- 不動産投資・収益物件検索
- 東京都町田市 「柿生」駅一戸建ての詳細
一戸建て - 東京都町田市能ヶ谷3丁目 「柿生」駅
一戸建て
東京都町田市能ヶ谷3丁目
小田急小田原線「柿生」駅 徒歩11分
価格:4,450万円 / 想定利回り:約6.2%
満室時年収:276万円 / 月収:23万円
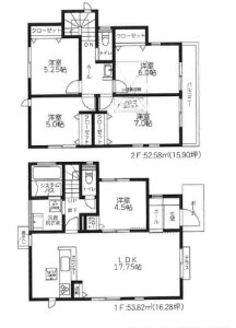
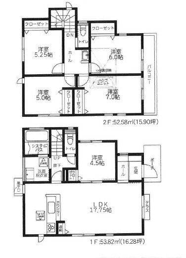
- 規模:地上2階
- 築年月:2023年03月 / 構造:木造
- 建物面積:106.4m² / 土地面積:137.9m²

| 新築中古区分 | 中古 | 物件番号 | F-16553 |
|---|---|---|---|
| 建ぺい率 | 40% | 容積率 | 80% |
| 土地面積 | 137.9m² | 取引態様 | 媒介 |
| 坪単価 | 建物面積 | 106.4m² | |
| 延べ面積 | バルコニー方向 | ||
| 土地権利 | 所有権 | 地目 | 宅地 |
| 都市計画 | 市街化区域 | 用途地域 | 第1種低層住居専用地域 |
| 築年月 | 2023年03月 | 工事完了年月 | |
| 現況 | 賃貸中 | 引渡 | 相談 |
| 接道 | |||
| 国土法届出 | 建築条件 | ||
| 私道負担 | 私道面積 | ||
| 地勢 | 駐車場 | ||
| 備考 | |||
-

東京都町田市森野1-7-23
大樹生命町田ビル6階
店舗案内はこちら -



-





































●おすすめポイント!
【築浅】小田急線「柿生」駅徒歩圏!
◎築浅!
◎小田急線
◎駅から徒歩圏
◎本下水、都市ガス
学区:三輪小学校、鶴川第二中学校
お気軽にお問い合わせ下さい!!