- トップページ
- 不動産投資・収益物件検索
- 東京都足立区 「北千住」駅一戸建ての詳細
一戸建て - 東京都足立区本木2丁目 「北千住」駅
一戸建て
東京都足立区本木2丁目
JR常磐線「北千住」駅
バス19分 徒歩5分 日暮里舎人ライナー 扇大橋駅 徒歩18分
価格:3,980万円 / 想定利回り:約4.58%
満室時年収:182.4万円
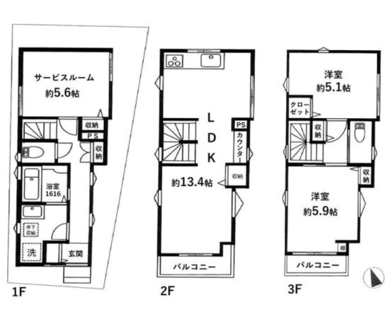
- 規模:地上3階
- 築年月:2021年11月 / 構造:木造
- 建物面積:77.16m² / 土地面積:45.55m²

| 新築中古区分 | 中古 | 物件番号 | F-16406 |
|---|---|---|---|
| 建ぺい率 | 80% | 容積率 | 200% |
| 土地面積 | 45.55m² | 取引態様 | 媒介 |
| 坪単価 | 建物面積 | 77.16m² | |
| 延べ面積 | バルコニー方向 | ||
| 土地権利 | 所有権 | 地目 | 宅地 |
| 都市計画 | 市街化区域 | 用途地域 | 準工業地域 |
| 築年月 | 2021年11月 | 工事完了年月 | |
| 現況 | 賃貸中 | 引渡 | 相談 |
| 接道 | 南側 幅員4m | ||
| 国土法届出 | 建築条件 | ||
| 私道負担 | 私道面積 | ||
| 地勢 | 駐車場 | ||
| 備考 | ◎オーナーチェンジ ◎築浅 ◎JR常磐線「北千住」駅! ◎南向きバルコニーで陽当り良好 ◎3LDK お気軽にお問い合わせ下さい!! |
||
-

東京都町田市森野1-7-23
大樹生命町田ビル6階
店舗案内はこちら -



-










































